МЕНЮ
EE
EN
RU
ГЛАВНАЯ СТРАНИЦА
МЕСТОПОЛОЖЕНИЕ
ЦЕНЫ И ПЛАНЫ
ВНУТРЕННЯЯ ОТДЕЛКА
ФОТОГАЛЕРЕЯ
О ЗДАНИИ
ИНФОРМАЦИЯ О ПРОДАЖЕ
EE
EN
RU
Все квартиры
ПЛАН КВАРТИРЫ
ПЛАН ЭТАЖА
РАСПОЛОЖЕНИЕ КВАРТИРЫ НА ЭТАЖЕ
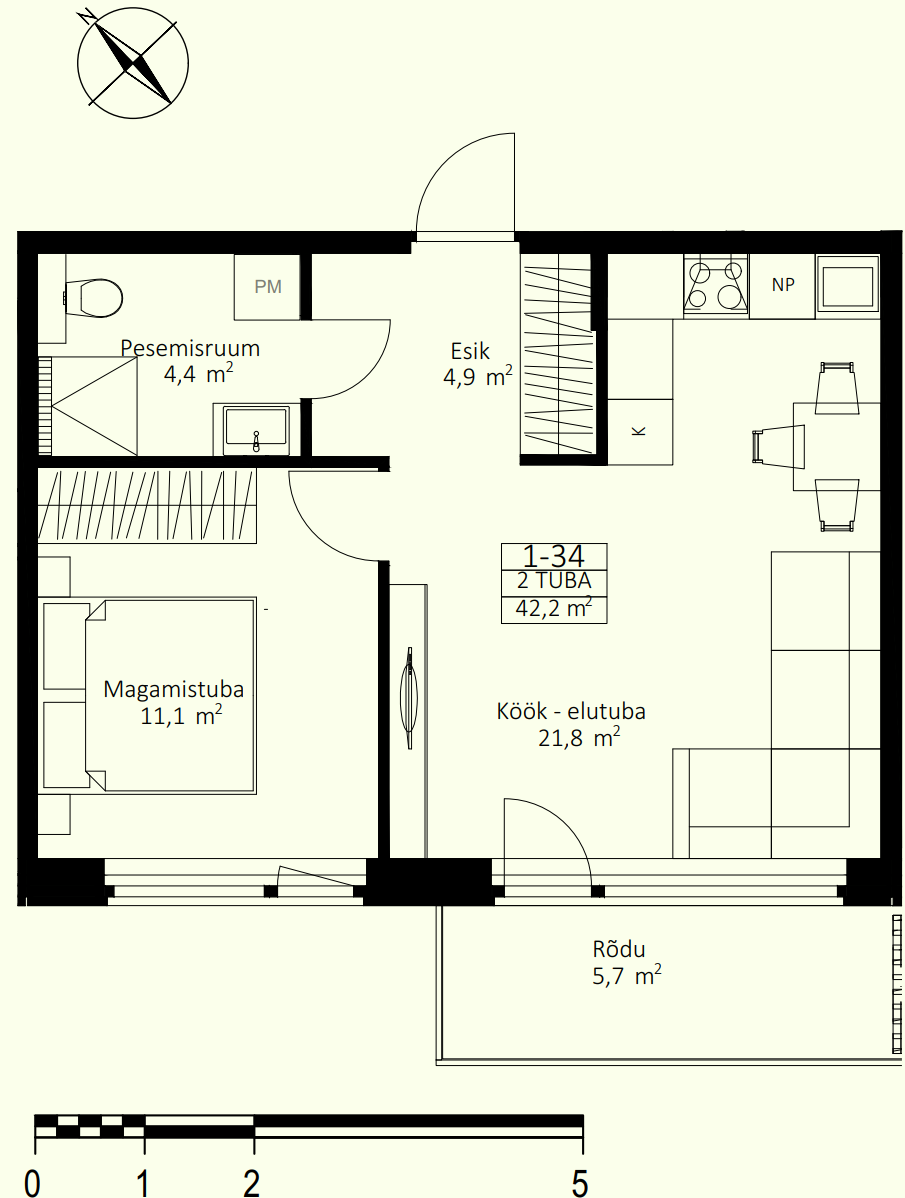
Ringi põik 1/1 Korter 34
Этаж
6
Количество номеров
2
Общая площадь m
2
42.2
Балкон/терраса m
2
5.7
Цена
135 100 €
Забронировать встречу
ПЛАН КВАРТИРЫ
ПЛАН ЭТАЖА
РАСПОЛОЖЕНИЕ КВАРТИРЫ НА ЭТАЖЕ