MENÜÜ
EE
EN
RU
AVALEHT
ASUKOHT
HINNAD JA PLAANID
SISEVIIMISTLUS
GALERII
HOONEST
MÜÜGIINFO
EE
EN
RU
Teised korterid
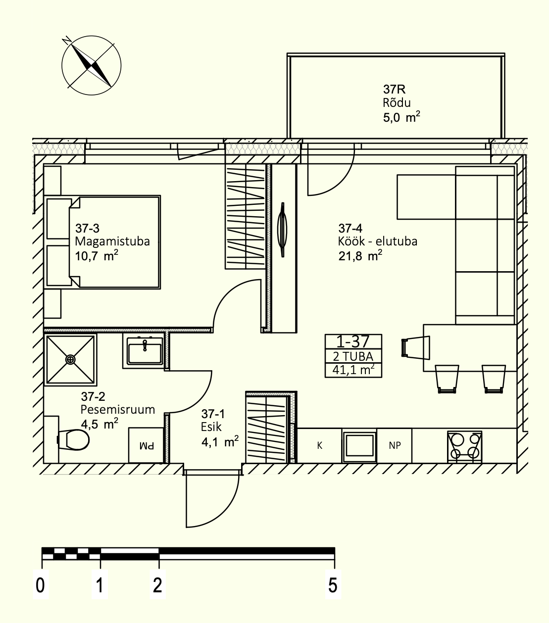
KORTERIPLAAN
KORRUSEPLAAN
KORTERI ASUKOHT KORRUSEL
Ringi põik 1/1 Korter 37
Korrus
6
Tubade arv
2
Pindala m
2
41.1
Rõdu/Terrass m
2
5.0
Müügihind
132 000 €
Broneeri kohtumine
KORTERIPLAAN
KORRUSEPLAAN
KORTERI ASUKOHT KORRUSEL