MENÜÜ
EE
EN
RU
AVALEHT
ASUKOHT
HINNAD JA PLAANID
SISEVIIMISTLUS
GALERII
HOONEST
MÜÜGIINFO
EE
EN
RU
Teised korterid
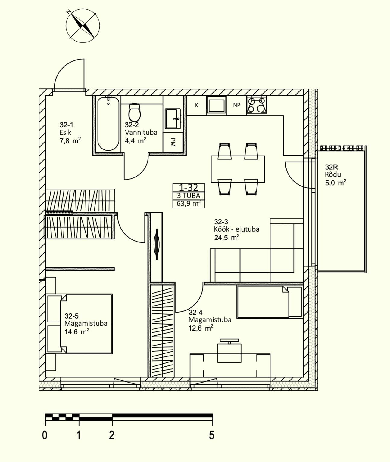
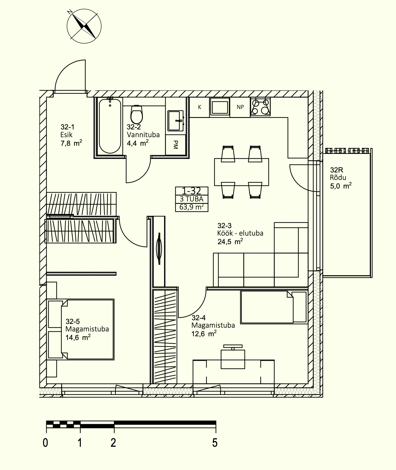
KORTERIPLAAN
KORRUSEPLAAN
KORTERI ASUKOHT KORRUSEL
Ringi põik 1/1 Korter 32
Korrus
6
Tubade arv
3
Pindala m
2
64.0
Rõdu/Terrass m
2
5.0
Müügihind
179 600 €
Broneeri kohtumine
KORTERIPLAAN
KORRUSEPLAAN
KORTERI ASUKOHT KORRUSEL