MENÜÜ
EE
EN
RU
AVALEHT
ASUKOHT
HINNAD JA PLAANID
SISEVIIMISTLUS
GALERII
HOONEST
MÜÜGIINFO
EE
EN
RU
Teised korterid
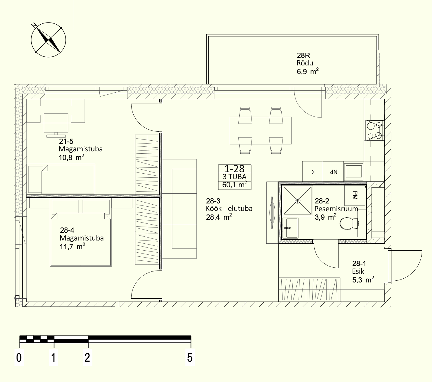
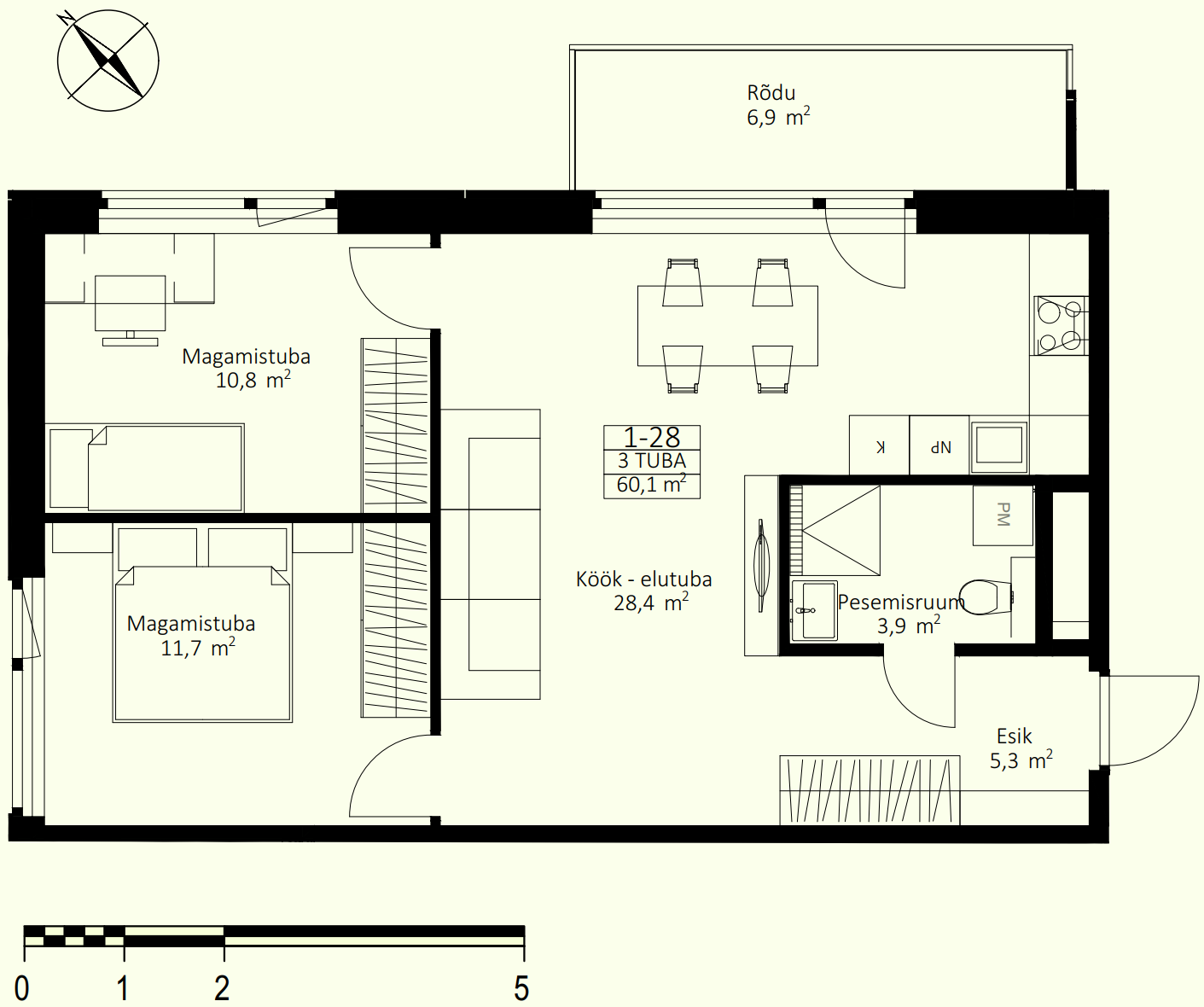
KORTERIPLAAN
KORRUSEPLAAN
KORTERI ASUKOHT KORRUSEL
Ringi põik 1/1 Korter 28
Korrus
5
Tubade arv
3
Pindala m
2
60.1
Rõdu/Terrass m
2
6.9
Müügihind
173 100 €
Broneeri kohtumine
KORTERIPLAAN
KORRUSEPLAAN
KORTERI ASUKOHT KORRUSEL