MENÜÜ
EE
EN
RU
AVALEHT
ASUKOHT
HINNAD JA PLAANID
SISEVIIMISTLUS
GALERII
HOONEST
MÜÜGIINFO
EE
EN
RU
Teised korterid
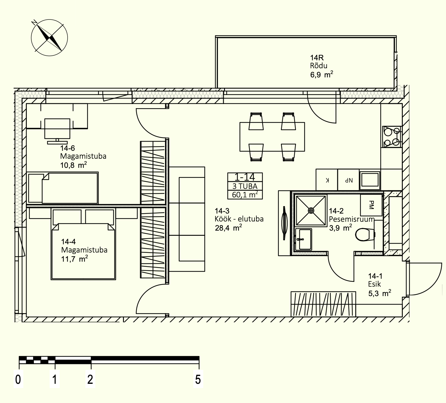
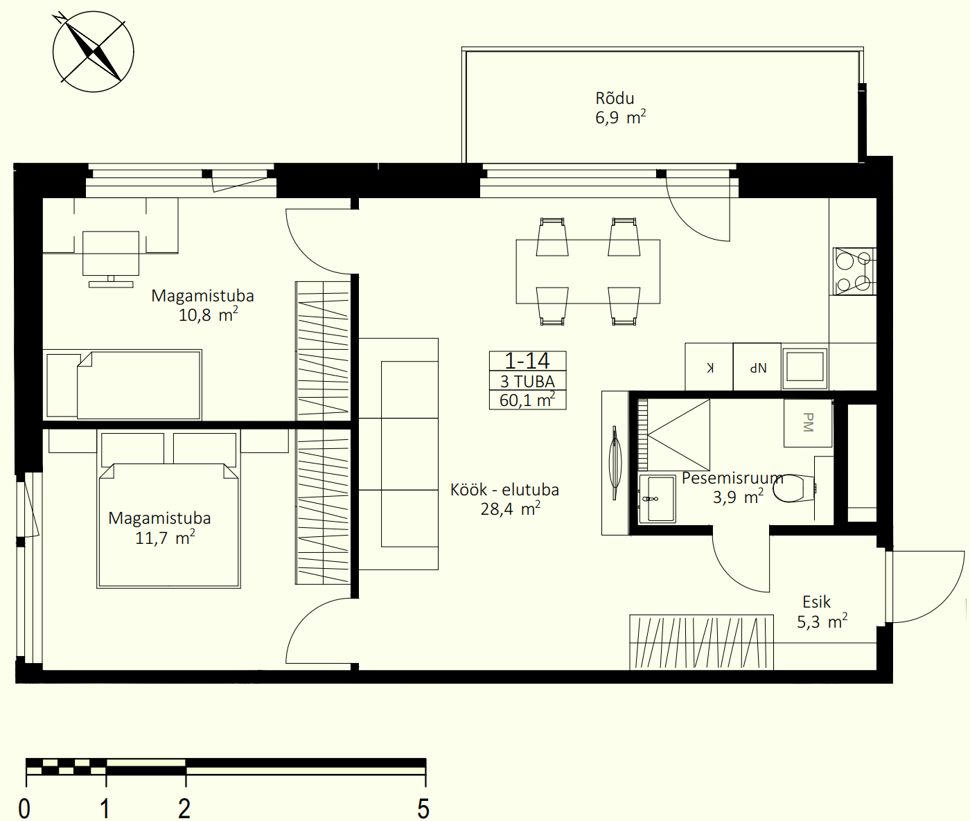
KORTERIPLAAN
KORRUSEPLAAN
KORTERI ASUKOHT KORRUSEL
Ringi põik 1/1 Korter 14
Korrus
3
Tubade arv
3
Pindala m
2
60.1
Rõdu/Terrass m
2
6.9
Müügihind
170 700 €
Broneeri kohtumine
KORTERIPLAAN
KORRUSEPLAAN
KORTERI ASUKOHT KORRUSEL