МЕНЮ
EE
EN
RU
МЕНЮ
ГЛАВНАЯ
ЛОКАЦИЯ
ЦЕНЫ И ПЛАНЫ
ГАЛЕРЕЯ
ОТДЕЛКА ИНТЕРЬЕРА
О ЗДАНИИ
ИНФОРМАЦИЯ О ПРОДАЖЕ
EE
EN
RU
ЗАКРЫТЬ
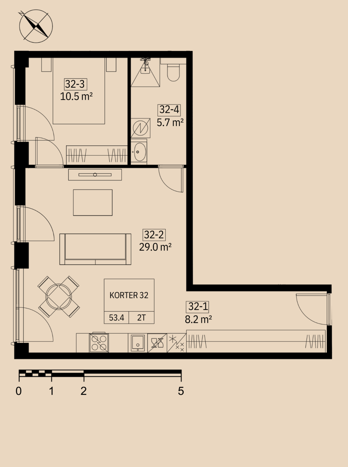
Все квартиры
План квартиры
План этажа
PDF
КВАРТИРА 32
Этаж
7
Комнат
2
Размер m
2
53.4
Балкон m
2
–
Цена
189 100 €
Забронировать
План квартиры
План этажа
PDF